Nhà Ruộng bậc thang xanh ở Nghệ Tĩnh có một không hai ở Việt Nam
Nhà Ruộng bậc thang xanh ở Nghệ Tĩnh có một không hai ở Việt Nam
Sự kết hợp độc đáo giữa kiến trúc giống ruộng bậc thang với việc trồng cây xanh văn phòng trên mái đã tạo ra kiểu kiến trúc nhà độc nhất vô nhỉ và chỉ có một không hai ở Việt Nam.

Ngôi nhà 3 tầng ở thành phố Hà Tĩnh xây dựng dựa trên ý tưởng hòa trộn kiến trúc và nông nghiệp – nền tảng của sự phát triển bền vững. Ở đây gia chủ trồng rau, cây cảnh trên mái dốc giống như các thửa ruộng ở vùng cao. Không hề có mái nhưng vẫn xanh mát một màu, ai đi ngang cũng phải ngước nhìn.

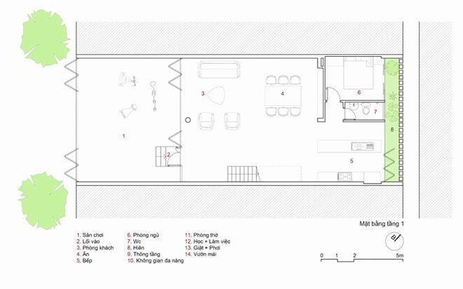
Nằm trên mảnh đất 160 m2 (8x20m), công trình có thiết kế hiện đại, vẻ ngoài kín đáo, đảm bảo sự riêng tư cho gia chủ.

Tạo hình bậc thang khiến cho ranh giới trong-ngoài, trên-dưới bị xóa nhòa. Nhìn từ bên ngoài, bạn không thấy sự tách biệt giữa các tầng mà chỉ cảm nhận được một khối liền mạch.

Kiến trúc sư dành một phần ba diện tích khu đất để làm sân chơi cho trẻ. Khoảng lùi rộng rãi giúp cho ngôi nhà hoàn toàn tách biệt với đường phố.

>> thi công tiểu cảnh sân vườn
Chủ nhà có thể mở rộng cửa để đón nhận nắng gió từ sân chơi phía trước.

Không gian bên trong được bố trí nương theo độ dốc mái để khai thác tối đa các góc nhìn, đón ánh sáng và bóng đổ nhờ độ chênh giữa những khay trồng cây.

Các kiến trúc sư đặt tên cho công trình là “Tổ ấm ruộng” với mong muốn đưa người dân thành thị gần lại với thiên nhiên hơn thông qua những trải nghiệm đời thường thú vị. Họ có thể gieo trồng trên những luống rau trên mái, chia sẻ thu hoạch với hàng xóm.

Đầu tư vào thiết kế hình khối kiến trúc, ngôi nhà tối giản về màu sắc và nội thất với tông màu trắng và thiết kế thẳng, phẳng.

Trong nhà có những khoảng thông tầng lớn, khe thoáng giữa các khay trồng cây nên ánh sáng lan tỏa mọi không gian.

Ngay cả khi không sử dụng rèm, ngôi nhà vẫn có sự kín đáo. Phòng ngủ ở mặt tiền nhìn xuống sân trước nhà.

Việc thi công không quá khó khăn, chỉ cần làm chống thấm cẩn thận. Chủ nhà trồng xen kẽ cây cảnh và hoa màu. Ở mỗi khay đều có vòi đóng mở tưới nước, ô thoát tràn, ngăn rác.

Công trình do công ty H&P Architects thiết kế. Chủ trì: KTS Đoàn Thanh Hà, Trần Ngọc Phương.

Theo Vnexpress




